Cargando...
Mauiki
BUY/FOR SALE RENTAL HOLIDAY RENTAL
Language
Español Deutsch Français Italiano Dansk Nederlands Português Čeština русский 中國的


Benajarafe, Málaga

House for sale
House for sale in Benajarafe, Málaga.
<
>
Print sign
530.000€
Welcome to your own slice of paradise. This charming Casa Mata, a traditional Andalusian fisherman's home, is nestled just 10 meters from the shoreline — offering the rare luxury of an oasis just a stone's throw from the beach.

Wake up and wander straight down for a morning swim, then spend the day soaking up the sun in tranquility and privacy on your own roof terrace. It's the perfect setting for alfresco dining or sunset drinks with sea views.

Inside, you'll find a beautifully styled, fully furnished home, blending coastal charm with global touches — including hand-selected pieces imported directly from Bali. The open-plan layout offers a spacious and inviting atmosphere, with a bright living area, dining space, and a modern kitchen designed for both entertaining and everyday comfort.

With 2 bedrooms and 2 bathrooms, this home is ideal for relaxed beachside living, a stylish holiday retreat, or a high-end rental opportunity.

Quiet, atmospheric, and utterly unique — this is a rare opportunity to own a beachside jewel that's as serene as it is stunning.

The property holds a tourist license.

Benajarafe, a tranquil coastal village on the Costa del Sol with a blend of traditional Andalusian charm with modern comforts. Situated just 14 km from Málaga, this area is characterised by its long beaches, palm-lined promenades, and a variety of restaurants and bars, making it an ideal location for both permanent residences and holiday homes .Benajarafe's appeal lies in its serene environment, combining the beauty of the Mediterranean coastline with the convenience of nearby urban centers. The village's rich history, dating back to the Palaeolithic era, adds cultural depth to its picturesque setting.
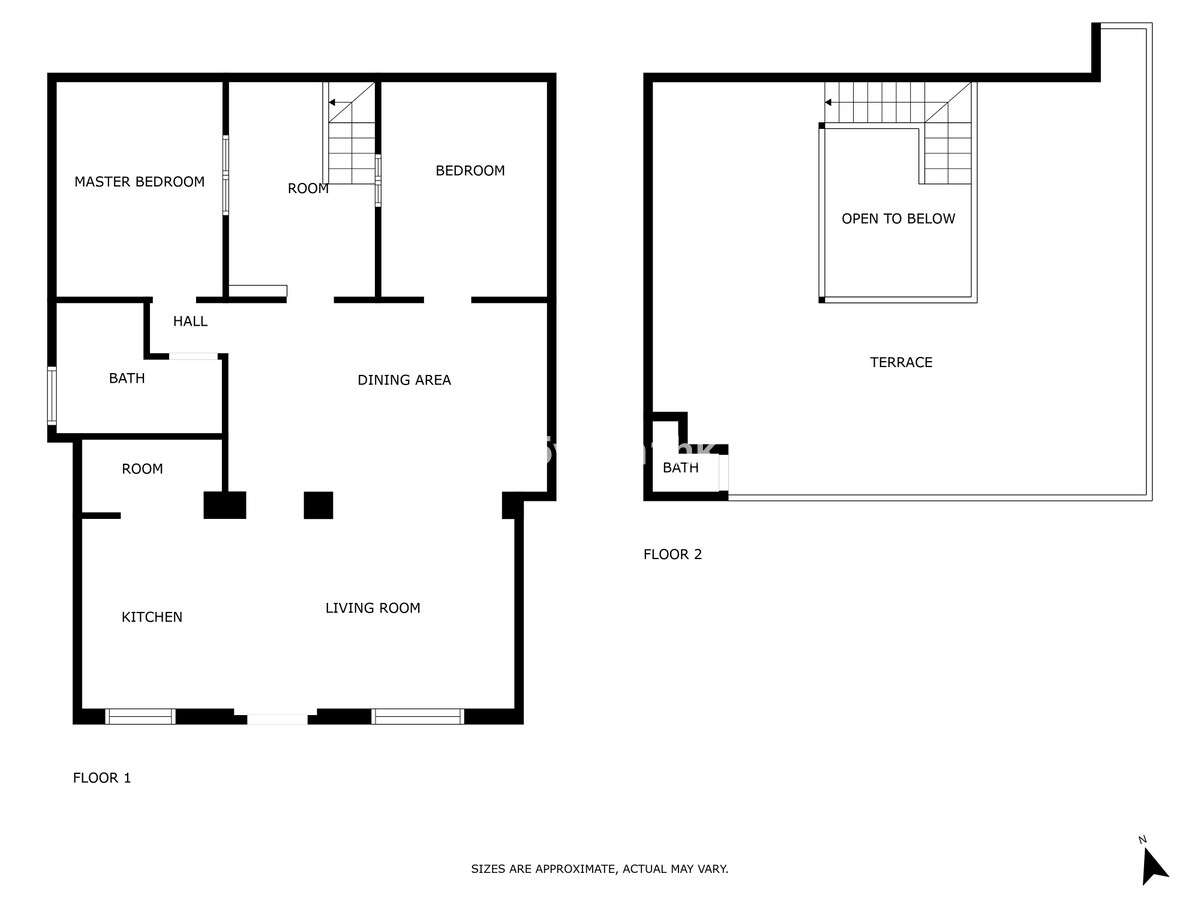
Size:
150m²
Plot size:
101m²
Bedroom/s:
2
Furnished:
Fully furnished
No. of floors:
2

Photos

Contact us

Information on property

Please, complete the information in this form to send your request

For

Subject

Message

Name

Phone number

Email

Reference



Security code



Professionals


How to advertise
Contact us

Privacy policy