Cargando...
Mauiki
COMPRA/VENTA ALQUILER ALQUILER VACACIONAL
Idioma
English Deutsch Français Italiano Dansk Nederlands Português Čeština русский 中國的


Coín, Málaga

Parcela/Finca en venta
Parcela/Finca venta en Coín, Málaga.
<
>
Imprimir cartel
119.000€
Parcela urbana en Sierra Chica (Coín) de 412 m² con proyecto visado de vivienda unifamiliar con piscina. Ubicada en urbanización consolidada con todos los servicios (agua, luz, saneamiento, alumbrado). Proyecto para vivienda de 2 plantas + sótano y piscina privada, listo para reactivar licencia y empezar a construir.

???? Ubicación y entorno
Parcela situada en la Urbanización Sierra Chica, en Coín (Málaga), una zona residencial en expansión con buenas comunicaciones y entorno tranquilo.

Urbanización con viales asfaltados, acerado y alumbrado público
Zona de viviendas unifamiliares aisladas
Acceso directo rodado a la parcela
Entorno consolidado, con servicios de agua, luz y saneamiento.

???? Características de la parcela
Superficie: 412,68 m²
Parcela urbana (suelo urbano consolidado)
Uso: Residencial unifamiliar
Edificabilidad: aprox. 215,74 m² techo


???? Parcela lista para construir sin necesidad de desarrollo urbanístico adicional.
????️ PROYECTO INCLUIDO

Se incluye proyecto básico visado de vivienda unifamiliar con piscina, lo que supone un ahorro importante de tiempo y costes.

Proyecto visado por el Colegio de Arquitectos de Málaga
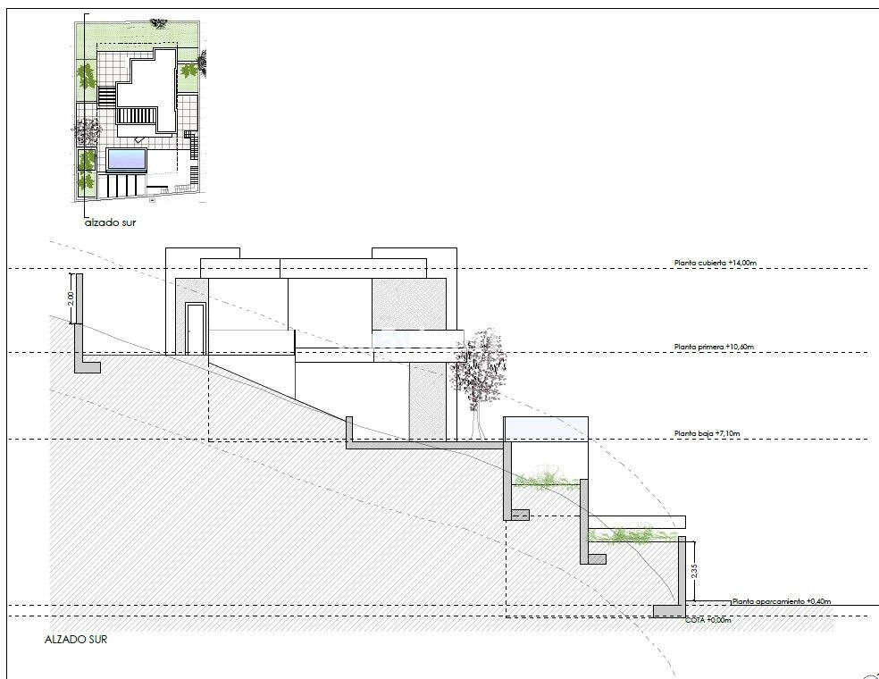
Vivienda unifamiliar aislada
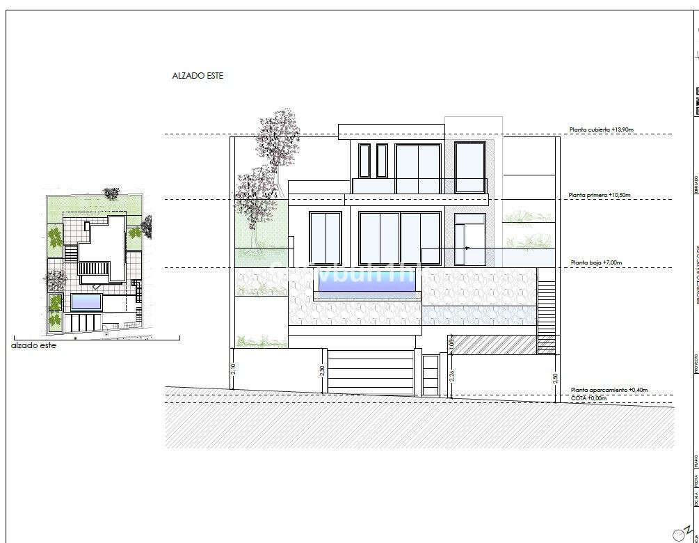
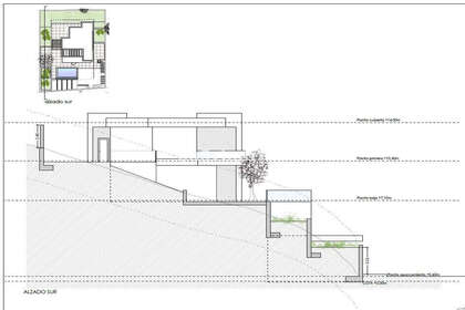
2 plantas + sótano
Piscina privada

???? Distribución de la vivienda proyectada

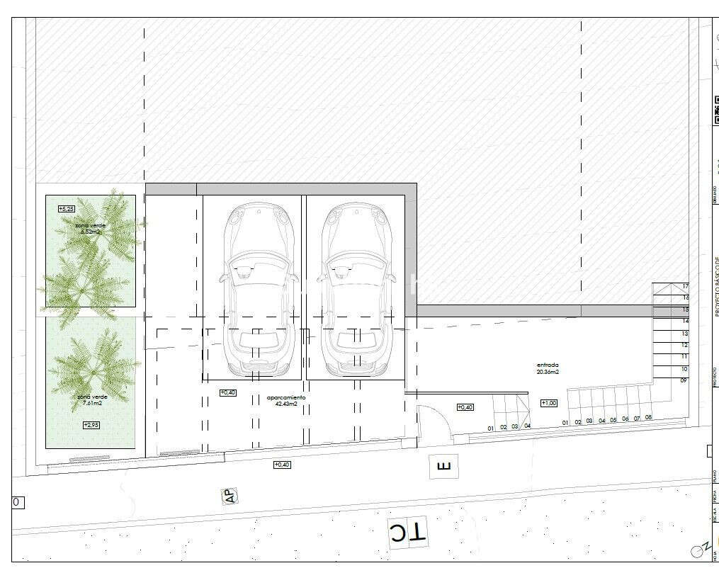
-Sótano:
garaje para 2 coches

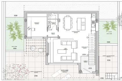
-Planta baja:
Salón amplio
Cocina-comedor
Baño
Despacho
Porche exterior

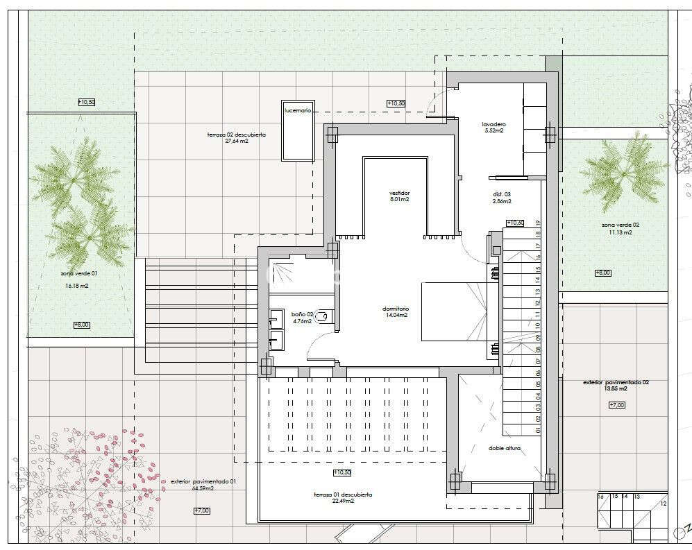
-Planta primera:
Dormitorio principal
Vestidor
Baño
Lavadero
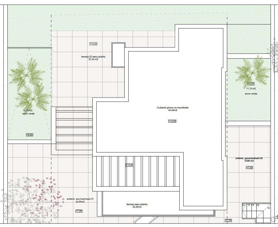
2 terrazas

???? Vivienda moderna, funcional y adaptada a vida familiar

???? Superficies del proyecto
Superficie construida vivienda: ≈152 m²
Superficie bajo rasante (sótano): ≈46 m²
Superficie total construida aprox.: ≈205 m²
Piscina: 12,5 m²

Además:
Zonas ajardinadas
Terrazas y exteriores amplios
⚙️ Calidades y aspectos técnicos del proyecto
Estructura de hormigón armado
Aislamiento térmico y acústico conforme al CTE
Carpintería exterior PVC
Doble acristalamiento
Sistema de energía solar para ACS
Cumplimiento de normativa de eficiencia energética

???? Proyecto preparado para cumplir normativa actual y eficiencia.

Fotos

Contacto

Información sobre propiedad

Por favor, completa los datos del formulario para enviar tu consulta:

Destinatario

Asunto

Mensaje

Nombre

Telefono

Email

Referencia



Código de seguridad



Profesionales


Cómo anunciarte
Contacta

Política de privacidad