Cargando...
Mauiki
KAUFEN/ZU VERKAUFEN MIETEN FERIENWOHNUNG
Sprache
Español English Français Italiano Dansk Nederlands Português Čeština русский 中國的


Bargas, Toledo

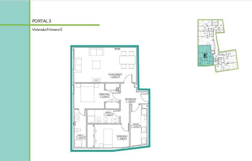
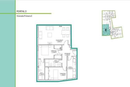
Wohnung zu verkaufen
Wohnung zu verkaufen in Bargas, Toledo.
<
>
NEU
Druck
135.000€
Calle Calixto García de la Parra,

Referenz:
8628
Fläche:
112m²
Benutzungsfläche:
68m²
Schlafzimmer:
2
Terrassen:
(0.00m²)
Klimaanlage:
Kalt
Personenaufzug:
Ja
Baujahr:
2025 (0 Jahr)
Beschaffenheit:
Gut

Fotos

Klicken Sie auf die Fotos um sie zu vergrössern:

Lage

Kontakt

Information zur Immobilie

Bitte füllen Sie das Formular aus um Ihre Nachricht zu senden

Empfänger

Betreff

Nachricht

Name

Telefonnummer

Email Adresse

Referenz



Sicherheitscode



Inmobiliaria Akris Toledo
Inmobiliaria Akris Toledo
Tfn925.282.201
Tfn671.645.664


Datenschutzerklärung