Cargando...
Startpagina
Villa's/Huizen
Duplex/Rijtjeshuizen
Flats/Appartementen
Percelen/Terreinen
Huur
Bedrijven te koop
Kantoren/huurruimtes
Beleggingen
Andere eigendommen
KOPEN/VERKOOP
HUUR
VERHUUR VAKANTIEWONING
Taal
Tweet
Campolongo, Pontevedra
Beleggingen te koop
<
>
Ref.MLS-604081
🔗
385.000€
Calle JOSÉ MILLÁN
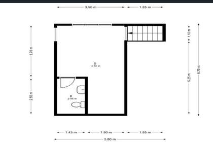
Oppervlakte:
680m²
Bruikbare oppervlakte:
671m²
Hoogte plafonds:
Hoog
Bouwjaar:
1968 (58 ja(a)r(en))
Horizontale verdeling:
Ja
Foto's
Detail
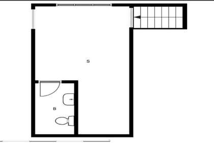
Plan
Lokaal
Lokaal
Lokaal
Lokaal
Plan
Plan
Plan
Badkamer
Lokaal
Lokaal
Gevel
Contact
Informatie over het eigendom
Gelieve het onderstaande formulier in te vullen om uw verzoek te versturen:
Geadresseerde
Onderwerp
Bericht
Naam
Telefoon
E-mail
Referentie
Ik wil informatie ontvangen over nieuwe eigendommen
Ik wil nieuws en interessante informatie ontvangen
Beveiligingscode
Aanvaarden
Privacybeleid
Privacybeleid